新築一戸建て 富山市藤木
所在地
富山市藤木
4,200万円
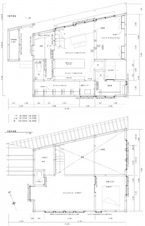
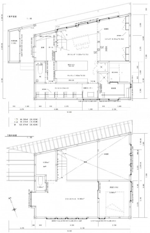
36.50坪
2SLDK
中心市街地へのアクセス良好、新しい住宅が建ち並び、周辺の発展著しいエリア☆閑静な住宅地、教育施設や商業施設・病院なども近く、生活利便性の高い物件です♪
物件概要
- 交通
-
富山地鉄本線 越中荏原駅 まで 徒歩29分
- 接道状況
- 北西側 公道6m 間口約8.1m
- 土地面積
- 公簿 204.34㎡ (61.81坪)
- 建物面積
- 120.67㎡ (36.50坪)
- 築年数
- 2025年 (令和7) 6月
- 建ぺい率
- 50%
- 容積率
- 80%
- 土地権利
- 所有権
- 構造および階数
- 木造 地上2階建
- 小学校区
- 藤ノ木 ( 585m )
- 中学校区
- 藤ノ木 ( 1415m )
- 私道負担
- 地目
- 現況
- 完成済
- 引渡時期
- 相談
- 駐車場
- 上水道
- 公共
- 下水道
- 公共
- ガス
- 都市計画
- 市街化区域
- 用途地域
- 1種低層
- 設備・条件
- 側溝、IHクッキングヒーター、追い焚き、トイレ2箇所
- 備考
- 取引態様
- 仲介

