新築一戸建て 富山市婦中町笹倉第3 2号棟
所在地
富山市婦中町笹倉第3 2号棟
2,480万円
29.89坪
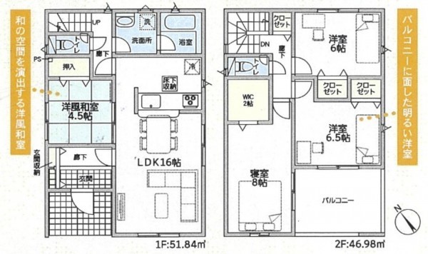
4LDK
物件概要
- 交通
-
JR高山本線 速星駅 まで 徒歩11分
- 接道状況
-
西側 公道5.1m
東側 公道6.8m - 土地面積
- 182.03㎡ (55.06坪)
- 建物面積
- 98.82㎡ (29.89坪)
- 築年数
- 2026年 (令和8) 4月
- 建ぺい率
- 60%
- 容積率
- 200%
- 土地権利
- 所有権
- 構造および階数
- 木造 地上2階建
- 小学校区
- 速星 ( 700m )
- 中学校区
- 速星 ( 1300m )
- 私道負担
- 地目
- 宅地
- 現況
- 建築中
- 引渡時期
- 予定 2026年3月
- 駐車場
- 有
- 上水道
- 公共
- 下水道
- 公共
- ガス
- 都市計画
- 市街化区域
- 用途地域
- 1種中高
- 設備・条件
- システムキッチン、オール電化、シャンプードレッサー、洗浄便座、モニタ付インターホン、駐車場2台分、※北陸電力、ユニットバス(換気暖房乾燥機付)、人感センサー付玄関、防犯カメラ、全居室ペアガラス
- 備考
- 取引態様
- 仲介

