中古一戸建て 富山市五福
所在地
富山市五福
4,298万円
33.66坪
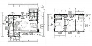
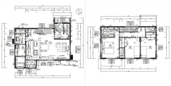
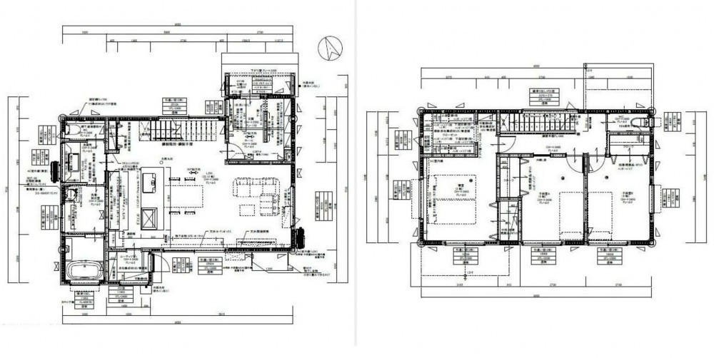
3LDK
物件概要
- 交通
-
富山地鉄富山市内線 富山大学前駅 まで 徒歩13分
富山地鉄富山市内線 トヨタモビリティ富山Gスクエア五福前(五福末広町)駅 まで 徒歩11分
富山地鉄富山市内線 安野屋駅 まで 徒歩23分
- 接道状況
- 北側 公道4.6m
- 土地面積
- 公簿 277.67㎡ (83.99坪)
- 建物面積
- 111.29㎡ (33.66坪)
- 築年数
-
2023年
(令和5)
3月
築3年 - 建ぺい率
- 60%
- 容積率
- 200%
- 土地権利
- 所有権
- 構造および階数
- 木造 地上2階建
- 小学校区
- 桜谷 ( 842m )
- 中学校区
- 芝園 ( 1260m )
- 私道負担
- 地目
- 現況
- 空
- 引渡時期
- 相談 ※現況渡し
- 駐車場
- 有
- 上水道
- 公共
- 下水道
- 公共
- ガス
- 都市ガス
- 都市計画
- 市街化区域
- 用途地域
- 1種中高
- 設備・条件
- 側溝、シャンプードレッサー、洗浄便座、浴室乾燥機、追い焚き、複層ガラス、ウォークインクローゼット、駐車場3台分、トイレ2箇所、※電気、オートバス、浴室暖房、浴室に窓蟻、3口以上コンロ、オープンキッチン、全居室収納、クローゼット、シューズIC、照明器具、室内物干し、省エネ給湯器、エアコン2台以上
- 備考
- 取引態様
- 仲介

